3-Zimmer-Wohnung gewünscht?

Brüssower Allee 58, 17291 Prenzlau

530 €
Gesamtmiete

3
Zimmer

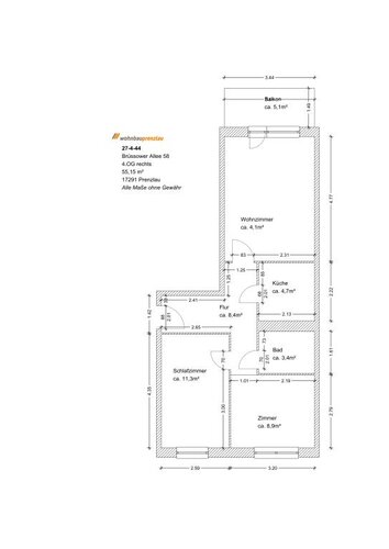
55,15 m2
Fläche

sofort
Bezugsfrei ab

Mietpreis und Kosten

Nettokaltmiete 370 €
Nebenkosten 70 €
Heizkosten 90 €
Heizkosten enthalten Nein
Gesamtmiete 530 €
Kaution 1110 €

Details

Objektnummer 1.27.4.44
Etage 4
Anzahl Zimmer 3
Wohnfläche 55,15 m2
Baujahr 1987
Heizungsart Fernwärme

Energieausweis

Energieausweisart Verbrauchsausweis
Ausstelldatum 01.11.2017
Jahrgang 2014
Gebäudeart wohn
Primärenergieträger Fernwärme
Wertklasse B
Wärmewert 74,00 kWh/(a m²)
Energieverbrauchkennwert 74.00

Besondere Merkmale

  • Balkon
  • Keller
  • Badewanne

Objektbeschreibung

Der Klassiker – diese Wohnungen sind Kult! Die Grundrisse sind effektiv gestaltet – die Wege kurz, das Platzangebot optimiert! Stellplätze für Ihr Auto stehen vor dem Haus kostenfrei zur Verfügung.
Einkaufsmöglichkeiten sind fußläufig gut erreichbar und eine Grundschule ist in unmittelbarer Nähe.

Ausstattung

Diese 3-Raum-Wohnung liegt im 4. Obergeschoss und verfügt über ein Wannenbad sowie einen großzügigen Balkon. Die Küche punktet mit einer Durchreiche zum Wohnzimmer.

Grundrisse

Lage

Die Stadt Prenzlau ist die Kreisstadt der wunderschönen Uckermark und liegt verkehrsgünstig etwa 100 km nördlich von Berlin und 50 km westlich von Stettin.

Kultur- und Naturliebhaber schätzen die Attraktivität der Stadt, die sich in den letzten Jahren zu einem beliebten Urlaubsziel entwickelt hat. Prenzlau punktet mit einem breit gefächerten Erziehungs- und Bildungsangebot. Neben Kitas, Grund- und weiterführenden Schulen gibt es in Prenzlau darüber hinaus ein Oberstufenzentrum, eine Volkshochschule, eine Musikschule, sowie diverse Aus-, Weiterbildungs- und Umschulungseinrichtungen. Mitten im Stadtgebiet verschmelzen Architektur und Freizeit in seiner schönsten Form: Freilichtbühne, Dominikanerkloster, Uckerseehalle und Seebad laden zum Verweilen und Genießen ein. Prenzlaus Infrastruktur ist gut ausgestattet – Fachgeschäfte, Ärzte, Krankenhaus, Kino, Restaurants und Cafés sind zentral gelegen und schnell erreichbar. Der Stadtbus und auch die Bahn (Richtung Berlin/Stralsund) fahren stündlich.


Stadtgebiet Igelpfuhl – Beste Aussichten für alle Generationen

Wer im Igelpfuhl lebt, schätzt die Wohnungen in familienfreundlichen Größen und die zahlreichen Spiel- und Bolzplätze. Das Stadt-Quartier profitiert vom Einkaufszentrum in der Mitte des Wohngebiets, den Kindergärten, einer Grund- und Oberschule. Zahlreiche Einrichtungen sorgen auch nach Schulschluss für einen erlebnisreichen Tag, zum Beispiel das Freizeitzentrum "Uckerwelle" sowie das Bürgerhaus.

Zum Leben mit Kindern gehört natürlich auch die Generation der Großeltern. Das altersgerechte Wohnhaus am Dreke-Ring 47 ist ein weiterer Pluspunkt.

Das Stadtzentrum ist mit dem Bus gut zu erreichen. Ein schöner Radweg führt abseits der Straßen in die Innenstadt.

Standort

Besondere Angebote der Wohnbau

Unser Vermietungsteam

steht Ihnen zu unseren Öffnungszeiten gern telefonisch zur Verfügung.

Telefon: 03984 8557-73

Anschrift

Logo der Wohnbau Prenzlau

Wohnbau GmbH Prenzlau
Friedrichstraße 41
17291 Prenzlau

Telefon: 03984 8557-0

Öffnungszeiten

Mo 09.00-12.00 Uhr + 13.00-16.00 Uhr
Di 09.00-12.00 Uhr + 13.00-17.00 Uhr
Mi geschlossen
Do 09.00-12.00 Uhr
Fr 09.00-12.00 Uhr


Bitte vereinbaren Sie einen Termin.
»»» Kontaktformular 

Sie haben eine Havarie?

Das sind Schäden, aus denen sich eine akute Gefahr für Leben und Gesundheit von Personen ergeben kann bzw. die eine Gefährdung der Gebäude hervorrufen und daher schnellstmöglich behoben werden müssen.


Unsere Havarienummer: 03984 8557-77