Gewerberäume in der Kietzstraße

Kietzstraße 1, 17291 Prenzlau

1425 €
Gesamtmiete

0
Zimmer

sofort
Bezugsfrei ab

Mietpreis und Kosten

Kaltmiete 1040 €
Nebenkosten 170 €
Heizkosten 215 €
Gesamtmiete 1425 €
Kaution 3120 €

Details

Objektnummer 1.557.3.31
Etage 0
Anzahl Zimmer 0
Baujahr 2001
Heizungsart Zentralheizung

Energieausweis

Energieausweisart Verbrauchsausweis
Ausstelldatum 15.12.2021
Jahrgang 2014
Gebäudeart nichtwohn
Primärenergieträger GAS
Wertklasse B
Wärmewert 72,00 kWh/(a m²)
Energieverbrauchkennwert 72.00

Besondere Merkmale

  • Aufzug
  • Abstellraum
  • Bad mit Fenster

Objektbeschreibung

Speziell in diesem Haus erreichen Sie jede Wohnung über einen Aufzug.
Je nach Verfügbarkeit stehen im Innenhof anmietbare Stellplätze und Carports zur Verfügung.

Hier empfangen Sie digitales Fernsehen und High-Speed-Internet mit garantierten 100 Mbit/s steht ebenfalls zur Verfügung. Teilweise können auch höhere Geschwindigkeiten angeboten werden – Ihr Internetprovider gibt Ihnen gern eine Auskunft.

Ausstattung

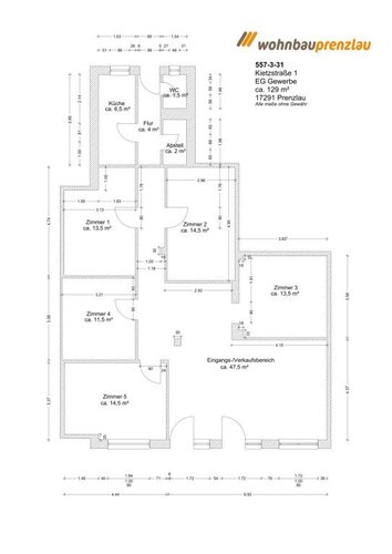
Wir bieten Ihnen ca. 130 qm Gewerbefläche in Innenstadtlage für Ihr Gewerbe. Für Kunden stehen öffentliche Parkplätze in der Nähe zur Verfügung. Eine Bushaltestelle ist vor der Tür und auch der Bahnhof nur wenige Meter entfernt. Große Schaufenster zur Straße bieten eine gute Möglichkeit der Werbung.

Aktuell werden die Räume als Kosmetikstudio genutzt. Derzeit bieten vier Behandlungsräume eine tolle Wohlfühlatmosphäre. Außerdem gibt es einen Büroraum, eine kleine Küche, ein WC und einen kleinen Abstellraum. Die aktuelle Mieterin der Räumlichkeiten hat im Empfangsbereich einen weiteren Behandlungsraum geschaffen.
Sämtliche Einrichtungsgegenstände können von der Vormieterin gegen eine Abstandszahlung übernommen werden.

Grundrisse

Lage

Die Stadt Prenzlau ist die Kreisstadt der wunderschönen Uckermark und liegt verkehrsgünstig etwa 100 km nördlich von Berlin und 50 km westlich von Stettin.

Kultur- und Naturliebhaber schätzen die Attraktivität der Stadt, die sich in den letzten Jahren zu einem beliebten Urlaubsziel entwickelt hat. Prenzlau punktet mit einem breit gefächerten Erziehungs- und Bildungsangebot. Neben Kitas, Grund- und weiterführenden Schulen gibt es in Prenzlau darüber hinaus ein Oberstufenzentrum, eine Volkshochschule, eine Musikschule, sowie diverse Aus-, Weiterbildungs- und Umschulungseinrichtungen. Mitten im Stadtgebiet verschmelzen Architektur und Freizeit in seiner schönsten Form: Freilichtbühne, Dominikanerkloster, Uckerseehalle und Seebad laden zum Verweilen und Genießen ein. Prenzlaus Infrastruktur ist gut ausgestattet – Fachgeschäfte, Ärzte, Krankenhaus, Kino, Restaurants und Cafés sind zentral gelegen und schnell erreichbar. Der Stadtbus und auch die Bahn (Richtung Berlin/Stralsund) fahren stündlich.


Innenstadt – Bahnhof

In einem der aufstrebendsten Wohnviertel der Kreisstadt liegt der Bahnhof. Das "Tor zur Welt" empfängt und verabschiedet täglich etliche PendlerInnen, UrlauberInnen, SchülerInnen und Studierende.

Viele gastronomische Einrichtungen locken zum Schlemmen und Verweilen ein. Rund um diesen Bereich findet man viele Einkaufsmöglichkeiten, Friseure und Ärzte, die sehr gut ohne Auto erreichbar sind.

Standort

Besondere Angebote der Wohnbau

Unser Vermietungsteam

steht Ihnen zu unseren Öffnungszeiten gern telefonisch zur Verfügung.

Telefon: 03984 8557-73

Anschrift

Logo der Wohnbau Prenzlau

Wohnbau GmbH Prenzlau
Friedrichstraße 41
17291 Prenzlau

Telefon: 03984 8557-0

Öffnungszeiten

Mo 09.00-12.00 Uhr + 13.00-16.00 Uhr
Di 09.00-12.00 Uhr + 13.00-17.00 Uhr
Mi geschlossen
Do 09.00-12.00 Uhr
Fr 09.00-12.00 Uhr


Bitte vereinbaren Sie einen Termin.
»»» Kontaktformular 

Sie haben eine Havarie?

Das sind Schäden, aus denen sich eine akute Gefahr für Leben und Gesundheit von Personen ergeben kann bzw. die eine Gefährdung der Gebäude hervorrufen und daher schnellstmöglich behoben werden müssen.


Unsere Havarienummer: 03984 8557-77